技术控的最爱:不同太阳高度,不同的遮阳效果
发布时间:2020-10-26 10:16:17 您是第 位浏览者
百叶帘在现在家居中比较常见,一般作内遮阳使用,但有时为了达到更好的遮光采光效果,百叶帘还能设计成百叶遮阳棚形式作外遮阳使用。
随着不同季节太阳高度的变化,这种遮阳棚能够带来不同的遮阳效果,在采暖季节阳光可以直射室内,而在夏季能有效的控制阳光的射入量,最大程度地降低建筑物能耗。
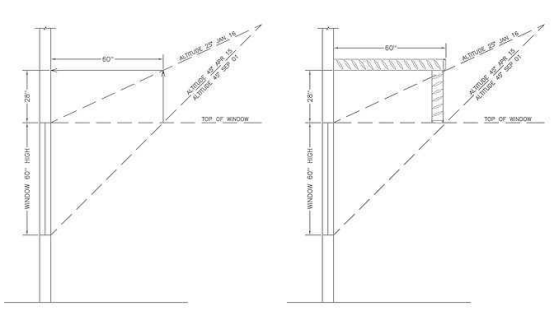
这种百叶遮阳棚的遮阳原理是利用了不同季节的太阳高度变化从而对应地有不同的遮阳效果,太阳高度即正午太阳光线与地面的夹角,不同季节不同地方的太阳高度不一样,北半球夏季的太阳高度要大,冬季反之。
那么这种百叶遮阳棚不同的季节遮光效果怎样呢?下面选取三个具有代表性的时间段来看看不同季节其遮阳效果。
从中我们可以看出遮光阴影最好的是在一天中的正午时分,而在早上和傍晚遮阳棚不能有效地挡住眩光和热量进入室内,这时可以通过改进来提高遮阳效果。
1、搭配百叶帘来最大程度地减少白天的直射阳光和眩光。
2、延长遮阳棚两端的长度,使其长于窗户的宽度。
3、若有多个窗户相邻,可以使用连续性的遮阳棚
4、在遮阳棚顶部增加部分百叶垂直帘,这样既能遮阳还不影响视线。
这种遮阳棚饰面有多种选择,可以涂上烤瓷漆,或者采用阳极氧化饰面。光线透过一系列的叶片轮廓,在墙上投下光影,与其他建筑设计元素融合,带来良好的建筑装饰效果。
随着国家对建筑节能的要求不断提高,建筑外遮阳产品已成为当下的热销产品之一,企业只有把握好当下的政策,设计出类似百叶遮阳棚这样的创新外遮阳产品,才能持续保证企业的经济效益。
来源:遮阳天下






